:伴随电子商务的迅猛崛起,快递业务量呈爆发式增长,分拣环节面临巨大挑战。移动分拣车为解决快递行业多元化场景的分拣需求提供创新性解决方案。本文介绍了移动分拣车的研究背景、设备组成及其作业流程,通过实际案例分析其应用成效,并对其未来发展予以展望。研究表明,移动分拣车能够提升快递分拣效率、降低运营成本,具有广阔的应用前景。
在电子商务蓬勃发展的时代浪潮下,快递行业作为其重要支撑,业务量呈现出爆发式增长态势。国家邮政局数据显示,2024年我国快递业务量突破1700亿件,同比增长超过20%。如此高速的增长给快递企业的分拣环节带来了前所未有的压力。传统的固定分拣中心在应对业务高峰时,遇到空间有限、灵活性不足、建设和运营成本高昂等问题。移动分拣车的出现,为解决这些问题提供了新的思路和有效途径。它能够依据业务需求,灵活部署于不同地点,迅速构建移动分拣能力,缩短分拣处理时限,缓解分拣压力,有力提升快递服务的质量与效率。因此,深入探究移动分拣车在快递行业的应用具有至关重要的现实意义。
近年来,全球电商的繁荣促使快递业务量持续高速增长,同时也给快递行业带来了一系列严峻挑战。在分拣环节,传统分拣处理中心的处理工艺相对稳定,在业务高峰时包裹量的剧增使其不堪重负,导致装卸车速度减慢,包裹在分拣处理环节出现一定程度的积压,尤其对水果、蔬菜等季节性农产品包裹的分拣处理影响严重。季节性农产品寄递具有分布地域不同、短期集中收寄件量大、内部处理能力需求急等特点,在进一步深化服务三农、乡村振兴的快递物流等方面存在优化提升空间。
同时,传统分拣中心的建设和运营成本居高不下。建设一个大型的固定分拣中心,需要投入巨额资金和时间用于场地购置、设备安装、人员配备等。在业务淡季,传统分拣中心存在设备闲置和人员工作不饱和的情况,造成资源浪费。
为应对快递行业分拣环节面临的挑战,移动分拣车应运而生。移动分拣车的发展经历了多个阶段。早期,公司尝试简单的集成O带摆轮/电滚筒摆轮与扫描读码系统,形成了初步的移动分拣车雏形。这种早期的移动分拣设备功能单一,分拣效率较PG·电子低,约3000件/小时,与传统人工分拣处理相比优势尚不明显。
针对第一代移动分拣车存在的问题,公司持续进行技术创新和改进,推动其向智能化、集成化、多场景化方向发展。在后续的研发中,对部分关键模块进行了创新设计,例如,分拣机构由摆轮分拣机升级为窄带分拣机,分拣滑槽数量由20个增加到32个,分拣效率可提升到6000件/小时。经过不断的升级和完善,移动分拣车逐渐成为快递行业应对分拣难题的重要解决方案之一。
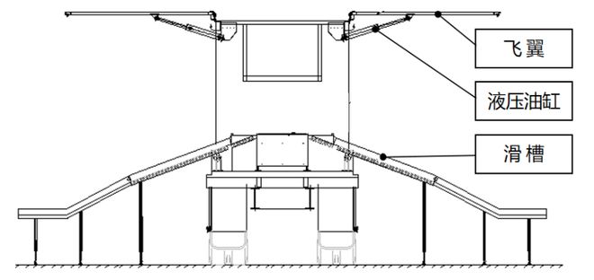
如图1所示,移动分拣车由车载平台、分拣机、差速皮带传输装置、滑槽、扫描与信息处理系统、液压系统等部分组成。
车载平台是移动分拣车的基础载体,其性能直接影响到整个移动分拣车的稳定性和移动性。目前,常见的车载平台采用半挂车结构,半挂车具有较大的装载空间,能够容纳多种分拣设备和大量待分拣包裹。车载平台的底架结构经过优化设计,由原一体式结构优化成液压自动装卸结构,10分钟即可实现车载平台与半挂车的自动分离、落地,这种设计提高了车辆的行驶稳定性与灵活性,可行驶到田间地头或电商客户现场作业,并减少了半挂车的使用周期,提升了运营效率。
分拣机是移动分拣车的关键分拣设备之一。该项目选用了窄带分拣机,该窄带分拣机由输送小车模块、直线驱动导轨、供电导轨、控制系统、分拣格口等组成,以直线电机作为输送驱动,电滚筒作为转向驱动。小车模块节距200mm,呈纵向直线环形封闭排布,布局紧密,输送速度可在 1.5~2.5m/s 之间灵活调节。供电导轨由一体式导轨、入轨导向装置、集电臂等组成,兼顾供电的稳定性与滑行的流畅度。为提高移动分拣车的适用场景,分拣格口设计为大件包裹缓存和小件集包两种切换模式。分拣机运行时,由直线电机驱动输送小车模块沿导轨匀速运转,通过供电导轨为输送小车模块上的电滚筒提供转向动力,根据分拣指令处理包裹到对应格口。上述设计使得窄带分拣机具有大小件兼容、响应速度快、分拣效率高、节省空间等优点,能够快速、准确地将包裹分拣至不同的滑槽,有效提高了分拣效率和准确性。
差速皮带传输装置在移动分拣车中起着重要的包裹传输和拉距作用。为提高车载平台空间利用率,差速皮带传输装置由多段可折叠、翻转输送皮带组成,皮带输送及承载能力经过优化设计,能够适应不同尺寸和重量的包裹。在使用时,通过液压机构可将皮带机分段展开,为后面的分拣机提供包裹传输的入口。差速皮带传输装置设有扫描段、拉距段,当包裹传输至皮带机时,差速皮带传输装置能够把包裹拉开相应的距离,便于后续的扫描和分拣作业,有效保障了分拣效率。
扫描与信息处理系统是移动分拣车实现智能化分拣的核心部分。扫描系统主要采用条形码扫描技术,能够快速、准确地读取包裹上的条码标签信息。在包裹入库和分拣过程中,安装在输送带上和分拣机顶部的扫描设备对包裹进行实时扫描,将获取的信息传输至信息处理系统。信息处理系统基于高性能计算机和智能分拣软件,对扫描获取的包裹信息进行快速分析、处理和存储。根据预设的分拣规则,系统自动生成分拣指令,并将指令发送至分拣设备,控制分拣设备准确地将包裹分拣至相应位置。同时,信息处理系统还能够与快递企业的物流管理系统进行数据交互,实现包裹信息的全程跟踪和监控。
液压系统在移动分拣车中承担着多个重要功能,主要用于控制厢体飞翼的翻转和滑槽的自动收放等操作。以厢体飞翼液压同步控制为例,厢体两侧飞翼翻转动作由布置在车厢四个角处的右前、左前、右后、左后飞翼油缸同时带动来实现。在一侧飞翼翻转过程中,对厢体飞翼前、后端动作同步要求较高,同步精度≤±1%,为满足这一同步翻转要求,液压系统采用同步油缸的同步控制技术(如图2、图3所示)。在滑槽自动收放方面,液压系统通过控制液压油缸的伸缩,实现滑槽的快速、平稳展开与收合,操作简便、效率高,实现移动分拣车快速部署,大大提高了移动分拣车的作业灵活性和便捷性。
在输入环节中,安装在输送带上的扫码设备同步工作,拉距段和扫描段分别对包裹进行拉距和条码扫描,获取包裹的基本信息,如寄件人、收件人地址等,并将这些信息实时传输至信息处理系统。信息处理系统可与快递企业的物流管理系统进行实时数据交互,对包裹信息进行初步分析和处理,为后续的分拣作业做好准备。
分拣流程是移动分拣车的核心环节。在这一过程中,包裹沿着输送带依次进入分拣区域。当包裹到达分拣机时,分拣机根据识别结果,通过分拣模块快速、准确地将包裹分拣到相应的滑槽。对于目的地为同一区域的包裹,分拣机会将它们引导至同一个滑槽,然后通过滑槽滑落到指定的集货区域。为了确保分拣的准确性,滑槽上端通常设有光电开关,用于检测包裹在分拣机上的状态,一旦发现异常,系统会及时发出警报并进行相应处理。
经过分拣后的包裹在集货区域完成集结。工作人员根据不同的配送路线和目的地,将包裹进行分类整理,大件包裹整齐码放至托盘、小件包裹集包后,装载到相应的配送车辆上。完成装载后,配送车辆按照既定的配送计划出发,将包裹送达各个机场、直发目的地、快递网点或客户手中。移动分拣车的信息处理系统会实时更新包裹的出库信息,以便客户和快递企业随时查询包裹的运输状态。根据季节性农产品寄递具有分布地域不同、短期集中收寄件量大的特点,可以对量大的包裹出口目的地采用整车直发模式,量小且分散的包裹运输至区域分拣中心,这一包裹出库流程保证了包裹能够准确、及时地送达客户手中,既提升了客户体验,又实现了揽收、分拣、运输上下环节协同,高质量提升了运营能力。
在快递行业,业务高峰期包裹量剧增,给分拣环节带来巨大压力。传统模式下,企业主要依靠人工分拣,人工分拣效率约800~1200件/人/小时,分拣效率不高,常导致使包裹积压,尤其对水果、蔬菜等时效性要求高的农产品包裹的分拣影响严重。
为解决上述问题,某企业引入移动分拣车。在业务高峰期间,通过合理部署,使其与分拣中心协同作业,此时移动分拣车每小时分拣效率达6000件/台。移动分拣车能快速搭建分拣作业线,凭借高效的分拣设备和优化的作业流程,使包裹能在短时间内被准确分拣,大大缩短了包裹的分拣时间,提高了快递时效性,有效缓解了业务高峰时分拣压力。
从成本角度来看,移动分拣车的应用为快递企业带来了显著的成本节约。一方面,采用移动分拣车后可减少了对固定分拣中心场地的依赖,降低了场地租赁和建设成本。以该企业采用移动分拣车的应用为例,作为旺季时物流处理中心的临时能力补充,每条移动分拣线万元的人工成本计算,一条移动分拣线万元,扣除设备折旧和维护等成本30万元后,可净节省60万元。此外,还减少了临时人员培训时间和场地租赁压力与成本。
另一方面,移动分拣车具有高度的灵活性与适应性,能够快速响应快递业务的各种变化。在业务旺季或突发情况下,如电商促销活动、自然灾害导致某地区快递业务量激增时,移动分拣车可以迅速部署到指定地点,快速组建分拣能力,满足临时增加的分拣需求。与传统固定分拣中心相比,移动分拣车具有模块化优势,无需复杂的场地改造和设备安装过程,能够在短时间内投入使用,且具有绿色环保节能的优点。同时,移动分拣车还可以根据不同的快递业务场景和包裹特点,灵活调整分拣策略和设备参数,实现分拣效能的阶梯式跃升。
移动分拣车作为一种创新的快递分拣解决方案,在快递行业中展现出了巨大的应用价值。通过对其研究背景、设备组成、系统作业流程和应用成效的分析,可以看出移动分拣车能够有效应对快递行业发展过程中面临的分拣挑战,提高分拣效率、降低PG·电子成本、提高灵活性与适应性。未来,随着技术的不断进步,移动分拣车有望在智能化、自动化方面取得更大突破,将进一步提升其分拣效率、性能和应用范围。快递企业可根据移动分拣车的优势,结合自身业务需求,合理应用移动分拣车,优质服务三农,统筹做好快递全链条精细化管理,推动快递行业的绿色高质量发展。
